Details

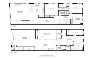
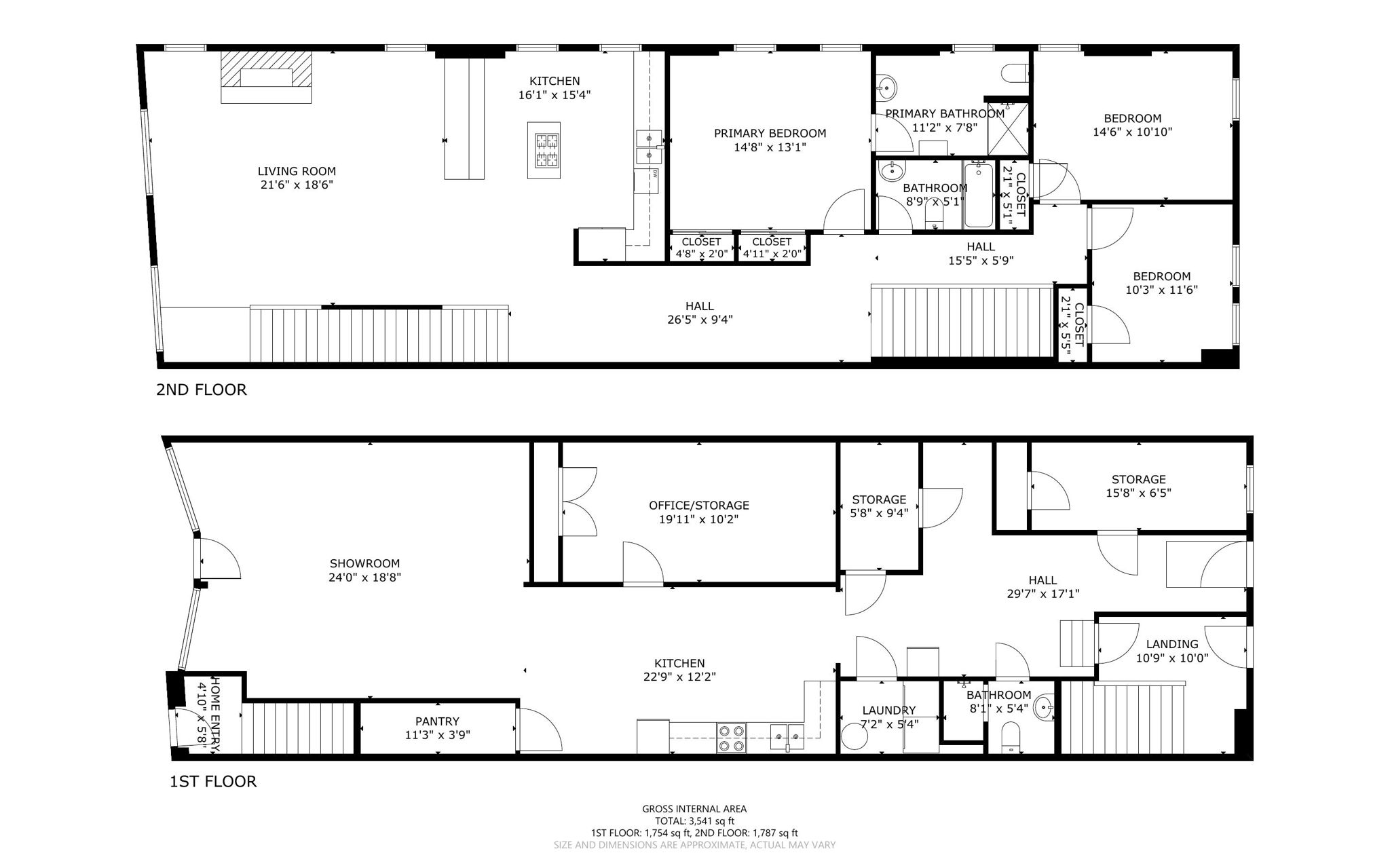
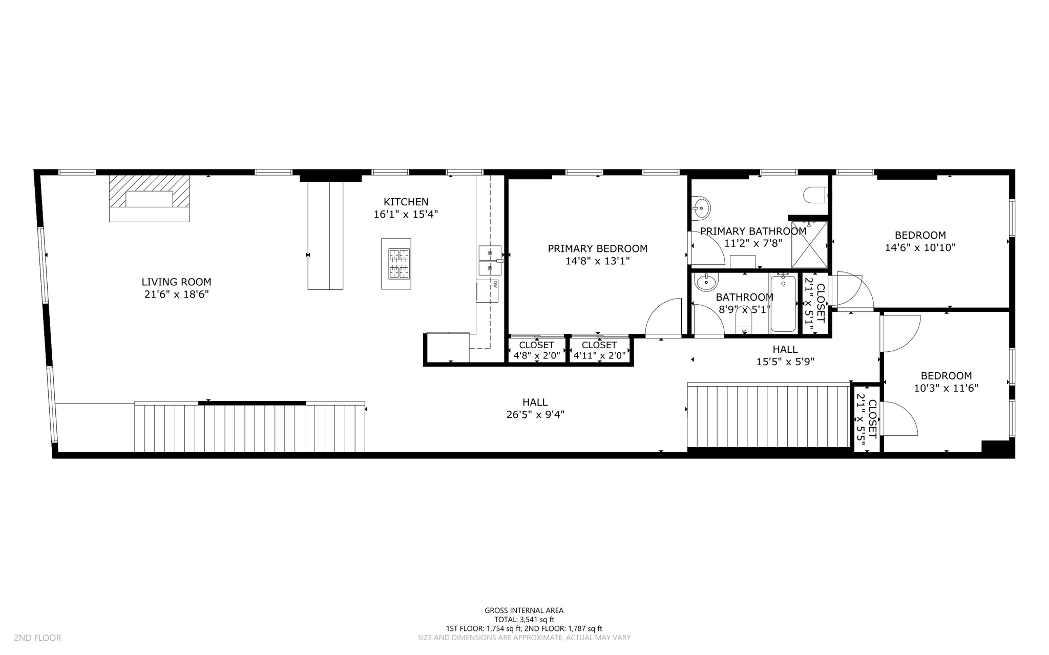
Step into history at 226 Settle Street in the heart of downtown Reidsville! Built circa 1925, this timeless brick building showcases beautiful handmade brick and original wood floors that reflect the craftsmanship of a bygone era. It originally housed the Reidsville Produce Wholesalers business in 1929, serving as a key part of downtown commerce in that era. Rich in character and architectural charm, it offers the perfect blend of historic appeal and modern opportunity. The second floor features a spacious 3-bedroom, 2-bath living quarters filled with warmth and natural light—ideal for owner occupancy, rental income, or a unique live-work lifestyle. The street-level commercial space offers excellent visibility and flexibility for your business, complete with a kitchen and full bath—perfect for retail, office, salon, café, or studio use. Own a true piece of Reidsville history while creating income and opportunity in one remarkable downtown property.

  • $359,900
  • 3 Bedrooms
  • 3 Bathrooms
  • 4,050 Sq/ft
  • Built in 1922
  • MLS: 1210982

Images

Floor Plans

3D Tour